Ref
Busco
Tipo
En
Zona
Habitaciones
Baños
Características
Precio

Piso en venta en Madrid (Ciudad Lineal) (ref.2412)

685.000 €
ref. 2412
130 m2 construidos
11 m2 terraza
 
 Dormitorios 3
 Baños 2
 Cocina Amueblada
 Calefacción Central con consumo individual
 Garajes 1
 Altura/Planta 1

Estado Muy buena
Tipo de suelo Tarima
Ascensor
Garaje
Calificación Energética (E) VER
Luz
Agua
Zonas verdes

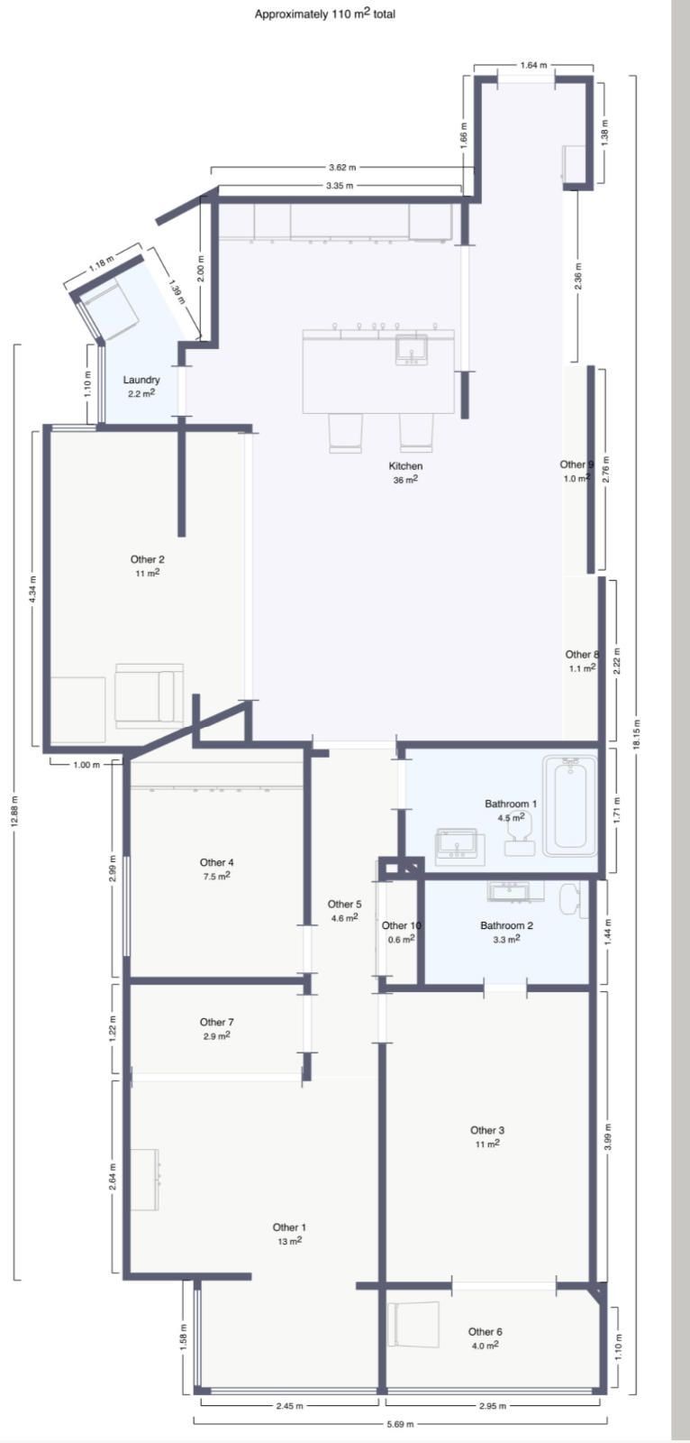
S C A L A | Properties presenta esta vivienda totalmente exterior con terraza de 3 dormitorios en San Pascual.

Ubicada en una primera planta exterior orientada al jardín. Es una vivienda muy luminosa y tranquila.

Posibilidad de plaza de garaje en el mismo edificio por 35.000€.

Según accedemos encontramos la zona de salón-comedor con cocina integrada, cuenta con una superficie útil de 36m2 y acceso directo a una terraza de 11m2 . La cocina está equipada con todos los electrodomésticos, también tiene una zona de lavandería independiente con lavadora y secadora ubicada junto a la cocina.

La zona de noche cuenta con tres dormitorios dobles, todos ellos con armarios empotrados, el dormitorio principal tiene baño en suite con plato de ducha y terraza acristalada. El segundo dormitorio también cuenta con terraza acristalada. En el pasillo junto a los dormitorios hay un segundo cuarto de baño con bañera.

Calefacción central con contadores individuales.

ITE FAVORABLE

Gastos de comunidad:

Vivienda 155€

Garaje 44€

IBI vivienda 694€

Edifico con portero físico y accesible.

Solicita información

Si deseas más información sobre esta propiedad, por favor, rellena el formulario: