Ref
Busco
Tipo
En
Zona
Habitaciones
Baños
Características
Precio

Piso en alquiler en Madrid (Retiro) (ref.2095)

1.720 €/mes
antes: 1.800 €/mes
ref. 2095
1970 Año de construcción
76 m2 construidos
 
 Dormitorios 3
 Baños 1
 Cocina Amueblada
 Calefacción Individual por gas natural
 Altura/Planta 5

Estado Reformada
Tipo de suelo Tarima
Ascensor
Calificación Energética (E) VER
Luz
Gas
Agua

SCALA Properties presenta esta vivienda de 3 habitaciones sin amueblar en el Barrio de Ibiza.

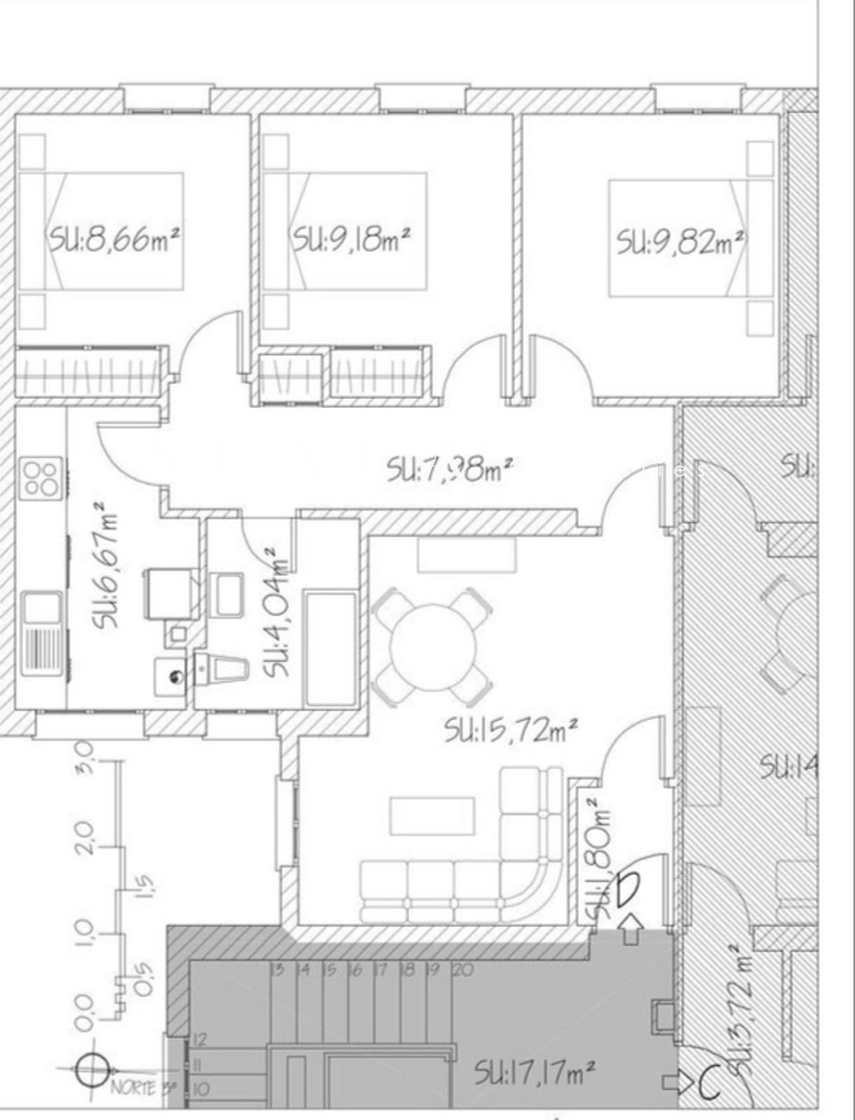
Fantástico piso en muy buen estado.Esta ubicado en una quinta planta y rodeado de ventanas lo que hace que entre mucha luz a la vez que no llegue nada de ruido. La vivienda dispone de 3 dormitorios, todos ellos con armarios empotrados y tamaño para cama doble, el principal tiene una superficie de 10 m2 , el segundo dormitorio tiene una superficie de 9 m2 y  el tercer dormitorio tiene una superficie de 9m2.En la zona de paso hacia los dormitorios esta el salon comedor que tiene una superficie de 12,33m2 .Junto a los dos dormitorios principales esta el cuarto de baño, este tiene una superficie de 4,81m2 y tiene un amplio plato de ducha. La cocina se entrega equipada con todos los electrodomésticos en perfecto estado, lavadora, lavavajillas teka de gran capacidad, frigorífico tipo combi , vitrocerámica, horno y campana extractora. Dispone de calefacción individual por gas y es un piso muy tranquilo y luminoso.Consumos muy reducidos gracias a la orientación y el aislamiento térmico por medio de ventanas aislantes. Es una zona excepcional con el parque del Retiro muy cerca y muy bien comunicado con varias opciones de transporte público por la zona.

Solicita información

Si deseas más información sobre esta propiedad, por favor, rellena el formulario: